Page suivante
Page précédente
Toulon (83000)

Maison 5 pièce(s) 4 chambre(s) 120 m²

1
1
653 m²
570 000 €
Réf PM-249-1

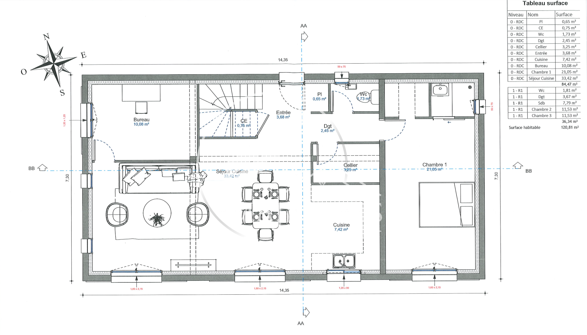
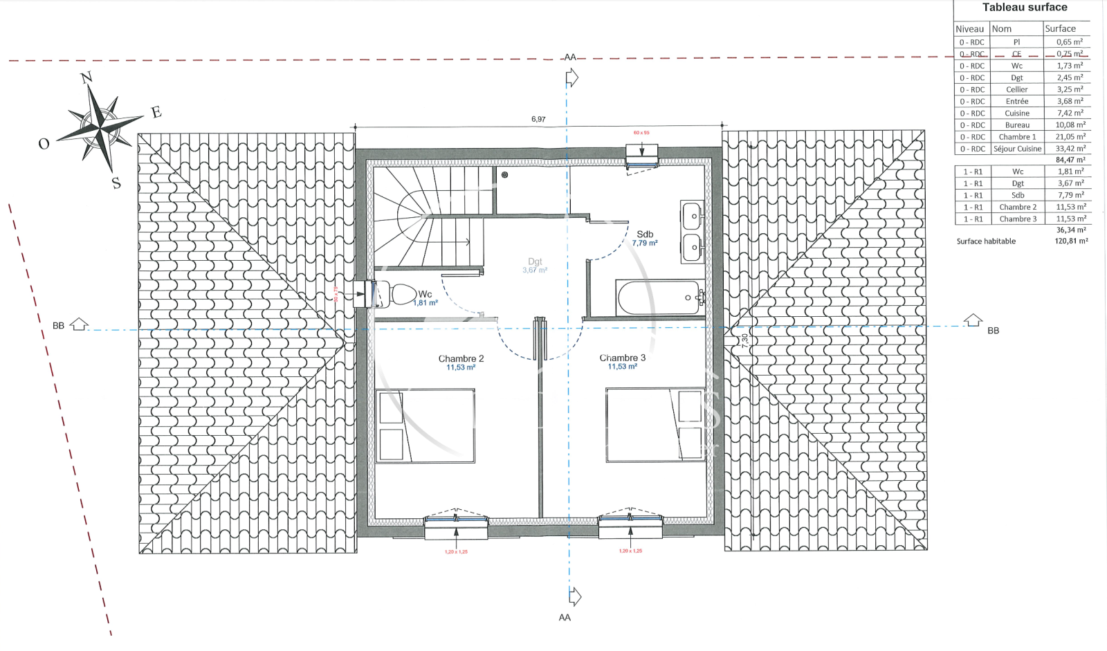
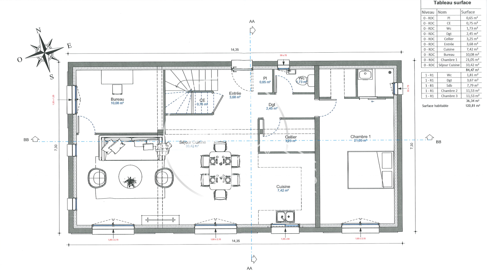
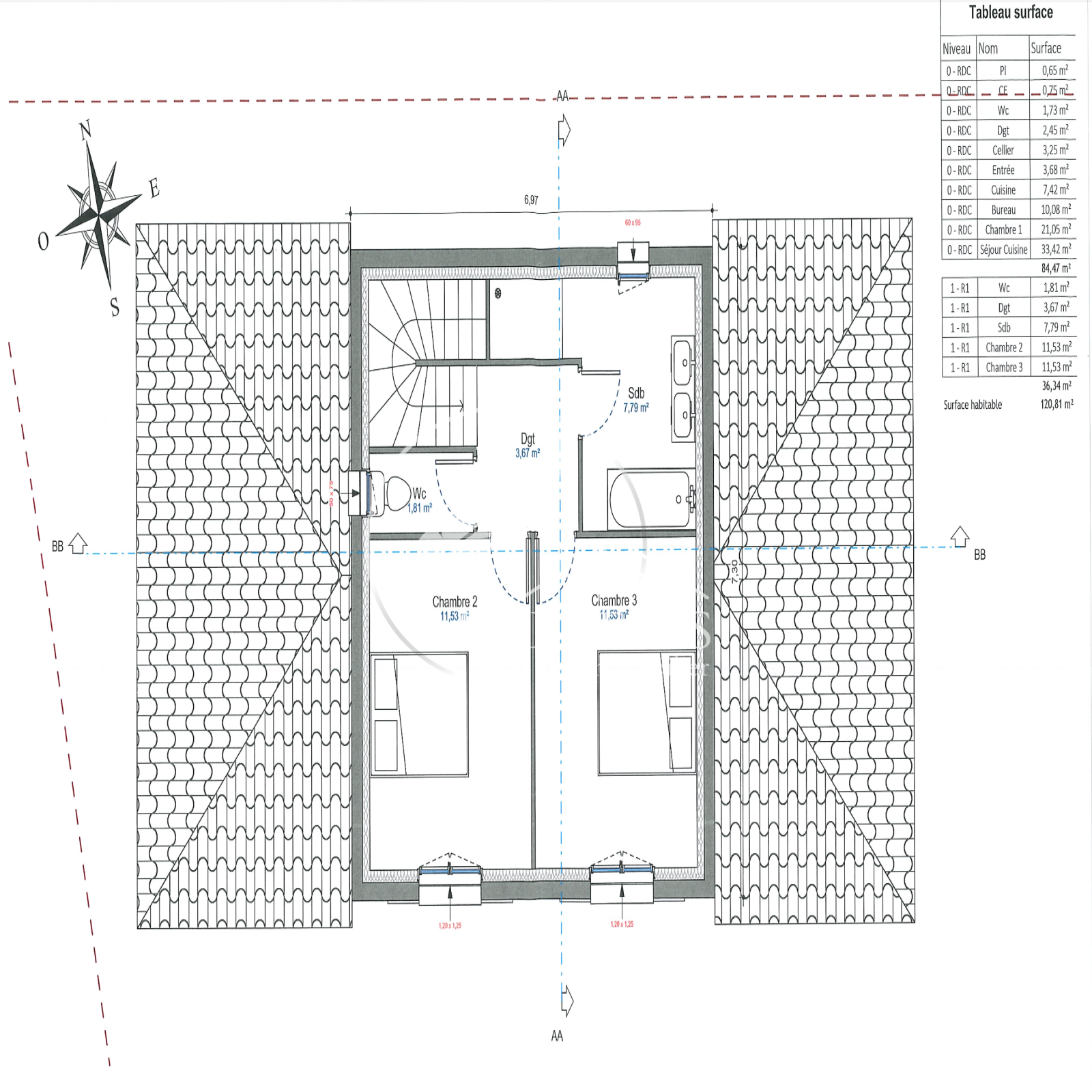
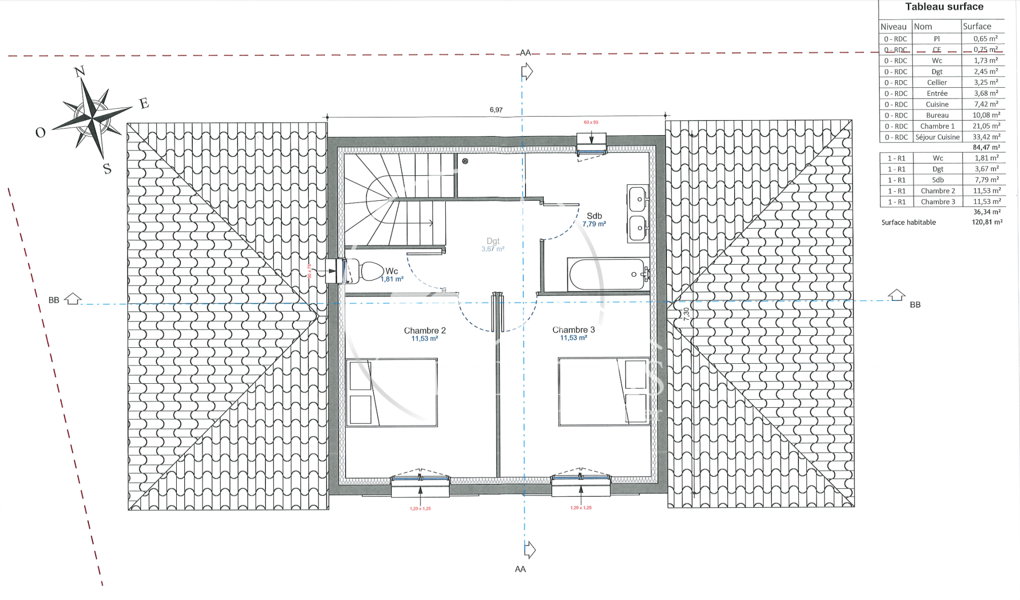
Maison à construire à TOULON - quartier Silbas / Loubière

L'agence Majesthis est heureuse de vous proposer ce beau projet de maison de deux niveaux à bâtir sur un agréable terrain au calme absolu dans une impasse quartier Siblas / La Loubière à Toulon

Proposition de maison de 120m2 exposée plein Sud (à définir selon vos envies) et composée de :

- au rez-de-chaussée : séjour / cuisine ouverte de 33m2, une suite parentale (chambre + salle d'eau), un WC séparé, un cellier et un grand bureau

- au premier étage : salle de bains, WC, deux belles chambres.

- deux places de stationnements privatives

- le reste en nature de jardin.

Le terrain est viabilisé en bordure.

Emprise au sol jusqu'à 20% sur la parcelle.

Prix du terrain : 349000€ frais d'agence inclus
Prix de la maison : à partir de 221000€ (peut varier selon les options choisies) hors terrassement, cuisine, peintures intérieures et chauffage.

Le terrain est en cours de viabilisation .
Maison bâtie par MAISONS VERTES DU VAR (La Valette du Var)

N'hésitez pas à nous contacter pour plus de renseignements .

Bilan énergétique

Diagnostics énergetiques
A propos de ce bien Caractéristiques de ce bien
  • Surface 120 m²
  • carrez 120 m²
  • terrain 653 m²
  • séjour 33,42 m²
  • 4 chambre(s)
  • 1 salle(s) de bain
  • 1 salle(s) d'eau
  • construit en 2025
  • cuisine
  • 2 parking(s)
  • exposition Nord-Sud
  • 2 niveau(x)
  • arboré
  • accès handicapé

Financier

Informations financières
Prix de vente 570 000 € Les honoraires d'agence seront intégralement à la charge du vendeur

Simulation

Calcul des mensualités
* Champs obligatoires
Patrick MAZZETTI Négociateur